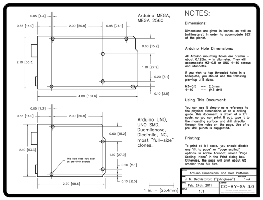
Recently I was busy building a nice case for an Arduino and I needed the dimensions to make the correct mounting holes.
I found this handy diagram online and though I would share it with everyone.
UPDATE:
Here are some more drawings that include the pin layouts as well.
We recommend the following books:
- Getting Started with Arduino By Massimo Banzi. Massimo is part of the team that invented Arduino
- Arduino Cookbook By Michael Margolis. It covers a huge range of Arduino topics.
- Arduino Projects to Save the World By Emery Premeaux and Brian Evans.











Thanks for sharing
Thank you for your work and sharing. It has saved me a lot of time designing a new shield attachment for hobbyist laser image engravers.
Thanks…